고무 자바라 및 실리콘 자바라 1 페이지 | 오성특수고무

오성특수고무

실리콘 압출 · 방진고무 · 판형 열교환가스켓 · 실리콘PACKING

⌂ HOME > 제품소개 > 자바라 > 고무 자바라 및 실리콘 자바라

고무 자바라 및 실리콘 자바라


실리콘 자바라
고무 자바라
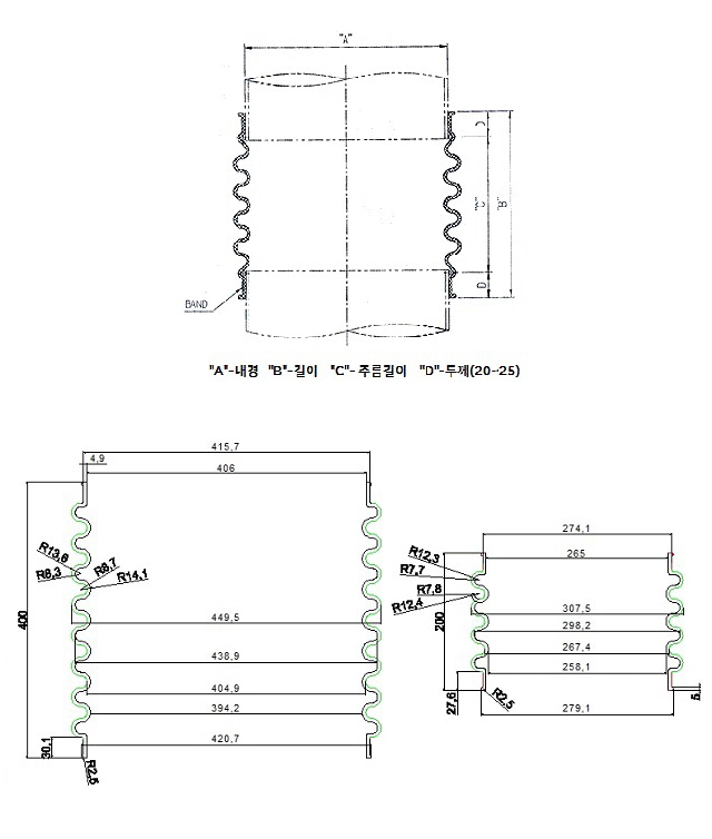
Specification

자바라(FLEXIBLE) 용도


자바라는 금형에 의해 개별로 제작되어 이음매가 없고 주름관 형상으로 되어있어 신축성이 뛰어납니다.
특히, 진동기기와 같은 떨림이 있는 기계설비의 전후 LINE에 진동이 전달되지 않도록 하기 위해 주로 사용됩니다.


검색

  TOP